"Little Streets, Big Ideas."
Boutique Development with Considered Design & Meaningful Impact
Boutique Development with Considered Design & Meaningful Impact
Main Lounge
Mudbrick House, Balnarring
@homebeautiful Magazine

At Little Street Design, we blend heritage preservation with modern functionality, creating spaces that combine history and contemporary design. Specializing in navigating the complexities of working with Councils and Heritage overlays, we excel at turning challenges into unique architectural solutions, where every corner of the design tells a story.







Reimagined to honour its mudbrick heritage, this Mornington Peninsula home seamlessly blends style, sophistication, and earthy elegance. Using traditional methods like mudbrick and Venetian plastering, every detail reflects expert heritage restoration with contemporary enhancement.







The first phase of this Top-Level, Heritage-listed Woolstore Apartment renovation involved a full kitchen overhaul, featuring exquisite Sovrano Italian Marble. As one of the first Australian projects to showcase this luxurious stone, the installation of the 3-meter slab was a feat given the apartment’s access restrictions.
Follow along as this exceptional transformation continues to unfold.


At Little Street Design, we are passionate about blending heritage with contemporary design. Our current project showcases a remarkable Spanish mission style property, preserving its historical charm while introducing modern amenities.
Follow the build stages online at @littlestreet.design










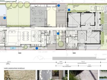
Little Street Design's latest project is at Peregian Beach in QLD. A Family Beach Home renovation from top to bottom, Watch this space as it grows from development to build, to life.
Builder: @hannonbuild
Architect: Raw Concepts
Interiors: @littlestreetdesign
Image - visitnoosa.com
Little Street Design is a division of HANNON BUILD Pty Ltd QBCC Act Licence 15400295
and JOHROB Pty ltd ATF J P Hannon Family Trust
PO Box 500, NEW FARM QLD 4005
We use cookies to analyze website traffic and optimize your website experience. By accepting our use of cookies, your data will be aggregated with all other user data.